Home
About Us
Services
Commercial Fit Out
Refurbishment & Structural
Extensions
Conversions
Oak Framed Structures
New Build
Policies & Insurances
Contact Us
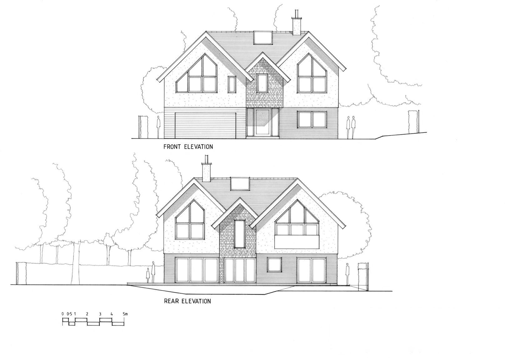
New Build